Ons kantoor is lid van Baerz & Co Luxury Homes; een internationaal platform dat exclusieve woningmakelaars met elkaar verbindt. Neem contact op met ons secretariaat voor meer informatie over het landelijke aanbod, waarvan u hieronder een selectie kunt bekijken.

VOORHOUT
Jacoba Van Beierenweg 136 a - 2215 KX
Die Niederlande

Rick Broekhof profile image
Rick Broekhof
Real estate agent
€1,175,000 k.k.
Wohnbereich
422m2
Grundstücksgröße
726m2
Schlafzimmer
5

Beschreibung

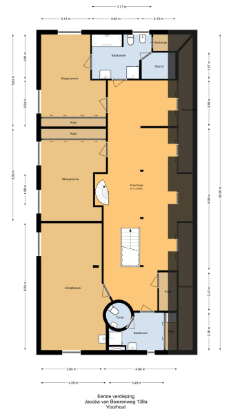
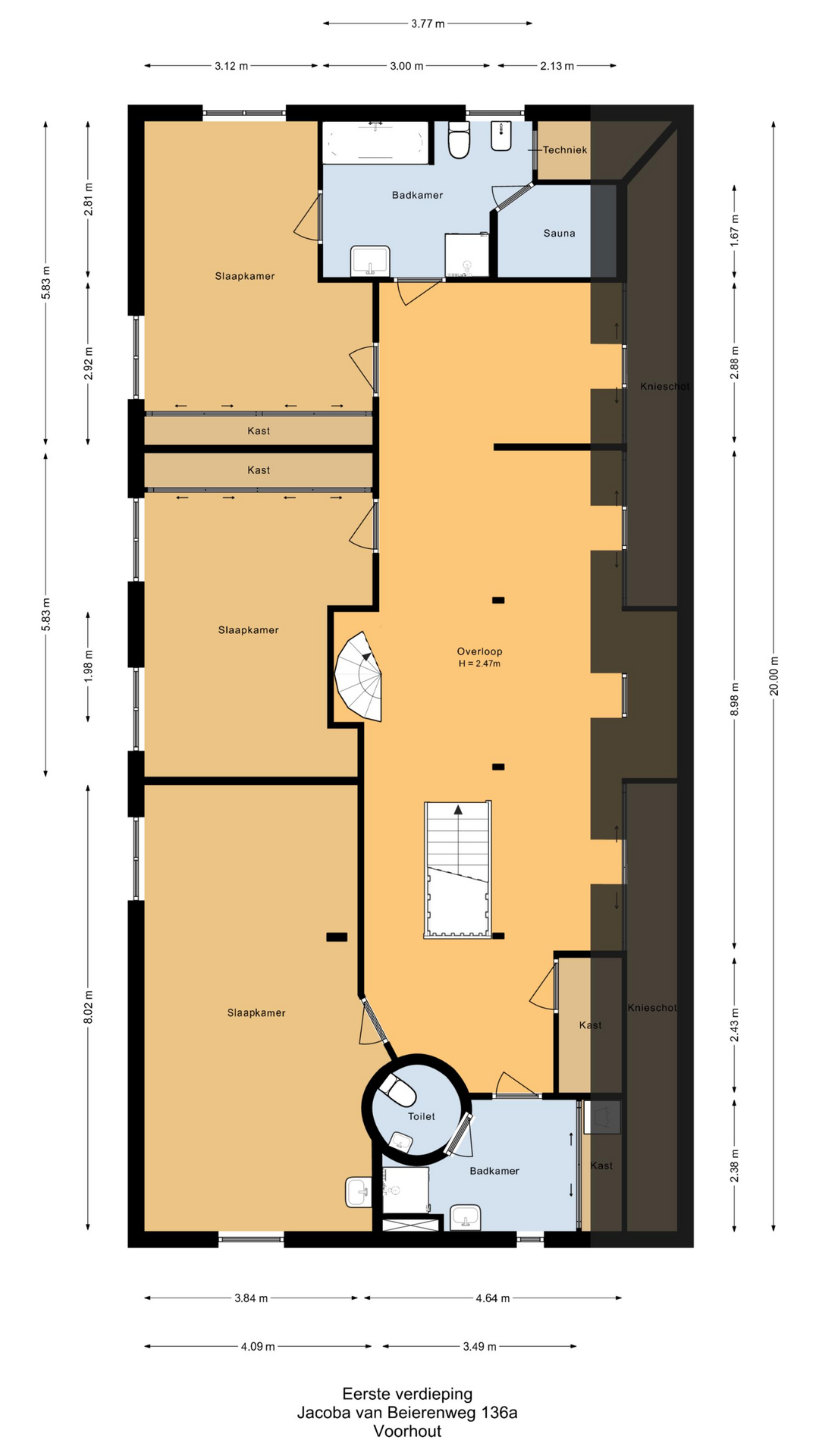
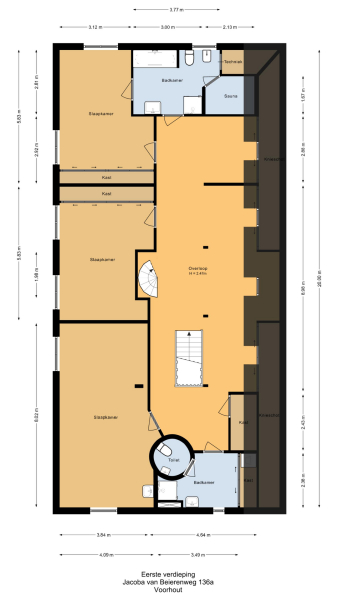
Die Villa Voorhout verkörpert kultivierte Privatsphäre auf 422 m² Wohnfläche, umrahmt von ungestörten Aussichten und der natürlichen Umgebung der Bollenstreek. Ein großzügiges Entree empfängt Sie, in dem großes Fensterglas sanftes Licht auf jede Linie und Fläche wirft. Weiträumige Sitzbereiche, ein offener Kamin sowie ein separates Esszimmer schaffen eine dezente Harmonie aus Entspannung und Gastlichkeit, während Parkett und authentische Abteiflächen die Innenräume mit ruhigem Ursprung verbinden. Fünf Schlafzimmer auf drei Ebenen bieten ein hohes Maß an Flexibilität — jedes Zimmer durchflutet von Tageslicht, teils mit Blick in den Garten und Klimaanlage. Zwei hochwertig ausgestattete Bäder, eines mit Sauna, ergänzen durchdachte Details: vier WCs, großzügige Abstellflächen und moderne Anbindungen wie Glasfaser. Die Küche öffnet sich zu Hof und Wiese und verbindet so den Alltag mit dem Ausblick ins Grüne. Separate Eingänge erlauben eine Doppelnutzung oder nahtlose Verbindung von Wohnen und Arbeiten. Das 726 m² große Grundstück umgibt das Haus mit gestalteten Gärten, gemauertem Grill und mehreren geschützten Ruheinseln. Eine lange Auffahrt und private Parkmöglichkeiten vor Ort sorgen für diskrete und bequeme Ankunft. Die Bauweise des Anwesens ermöglicht Anpassung — gleichermaßen geeignet für Familienleben oder Arbeit im Home-Office. Modernisierte Heizung, Klimaanlage ab April 2024 sowie Eignung für Solarpaneele betonen Komfort und Zukunftsorientierung. Von der Villa sind die Annehmlichkeiten und der Bahnhof von Voorhout mit dem Fahrrad gut erreichbar; urbaner Anschluss, ohne Kompromisse beim Rückzugsort. Diese Villa in Voorhout vereint Privatsphäre, Großzügigkeit und beste Verkehrsanbindung für alle, die substanzielle Ruhe im Wohnumfeld schätzen.

Entdecken Sie Voorhout mit Baerz, Ihrem vertrauenswürdigen persönlichen Immobilienfinder und Berater

Erfolg bei Kauf oder Verkauf hochwertiger Immobilien in Voorhout basiert auf Marktkenntnis, starken Beziehungen und professioneller Verhandlungsführung. Persönliche Immobilienberater verschaffen Zugang zu exklusiven und Off-Market-Angeboten, begleiten sicher durch lokale Regulierungen und vertreten diskret die Interessen ihrer Klientel. Ob Denkmal oder modernes Anwesen – mit dem richtigen Berater werden Transaktionen optimal strukturiert und Chancen zielgerichtet umgesetzt.

Häufige Fallstricke vermeiden

Internationale Käufer verlieren oft wertvolle Zeit, weil sie sich durch doppelte, veraltete oder irreführende Online-Angebote kämpfen müssen – besonders da fast 30% aller Luxusimmobilien überhaupt nicht auf dem Markt erscheinen.
Makler des Verkäufers vertreten die Interessen des Verkäufers, nicht Ihre, und schon eine einfache Anfrage kann dazu führen, dass eine Agentur Sie ohne Ihre Zustimmung als deren „Kunden“ registriert.
Mit Baerz Property Finders & Advisors umgehen Sie all diese Fallstricke vollständig.
Wir handeln ausschließlich in Ihrem Interesse, bieten unabhängige Vertretung, transparente Beratung und Zugang zu jedem verfügbaren Objekt – einschließlich privater und off-market Angebote, die andere nie zu sehen bekommen.

Neugierig, wie Sie Ihren eigenen Personal Property Advisor sichern können? Kontaktieren Sie uns, um zu erfahren, wie wir Ihre Interessen vertreten und Ihnen den gesamten Markt öffnen können.

Merkmale

Klimaanlage
Eigentumsübertragung
Verkaufspreis
€ 1.175.000 k.k.
Status
beschikbaar
Annahme
in overleg
Bau
Art des Hauses
Villa
Gebäudetyp
vrijstaande woning
Bauzeitraum
1975
Energieausweis
C
Dachtyp
zadeldak
Schlafzimmer
5
Badezimmer
2
Flächen und Volumen
Wohnbereich
422 m2
Andere Innenräume
0 m2
Externer Lagerraum
7 m2
Volumen in Kubikmetern
1387 m3
Grundstücksgröße
726 m2
Einrichtungen
Mechanische ventilatie
Tv kabel
Airconditioning
Rookkanaal
Sauna
Glasvezel kabel
Natuurlijke ventilatie
Vrij uitzicht
Beschutte ligging
Landelijk gelegen
Baerz & Co Property Brochure

Broschüre

Videos

Grundrisse

Wilbrink & v.d. Vlugt Makelaars

Heereweg 231
2161 BG Lisse

info@wilbrinkvandervlugt.nl
+31 252 41 90 49

www.onsaanbod.nl

Information / Besichtigungsanfrage

Rick Broekhof profile image
Rick Broekhof
Real estate agent