Baerz & Co is een landelijk samenwerkingsverband van zorgvuldig geselecteerde boutique luxury makelaars. Samen vormen wij één netwerk, met één gedeeld aanbod. De woningen die u op onze website ziet, zijn afkomstig van alle aangesloten kantoren binnen Baerz & Co. Daardoor is niet ieder object rechtstreeks door ons kantoor in verkoop, maar door een gespecialiseerde collega binnen ons netwerk. Heeft u een woning gevonden die u aanspreekt en wilt u meer informatie? Dan brengen wij u graag persoonlijk in contact met de betreffende verkoopmakelaar, zodat u direct en zorgvuldig wordt begeleid.

'S-GRAVENHAGE
Prinsestraat 37 F - 2513 CA
Netherlands

Dirk van Santvoort profile image
Dirk van Santvoort
Real Estate Agent
€1,580,000 k.k.
Living Area
201m2
Plot Size
116m2
Bedrooms
3

Description

Tucked between Prinsestraat and the stately Noordeinde a unique piece of The Hague history: the former fire station coach house dating from 1899. This characterful building was fully renovated in 2018 into a virtually detached, stylish city villa, preserving authentic details.

Behind the historic facade lies this spacious and bright home, which features three large bedrooms, two modern bathrooms, and an impressive living room of approximately 70 m². The high ceilings and open loft enhance the feeling of space. French doors leading to the courtyard with its own south-facing terrace offer a sense of freedom and privacy. This privacy is particularly high, partly because the entrance gate is closed in the evenings and on weekends.

The modern kitchen is equipped with every conceivable appliance and forms the heart of the home. Underneath the beautiful wooden floor is comfortable underfloor heating, which, together with an A energy label, ensures a pleasant and energy-efficient living environment.

The crowning glory is the sunny roof terrace, which offers a stunning panoramic view of The Hague.

Layout:
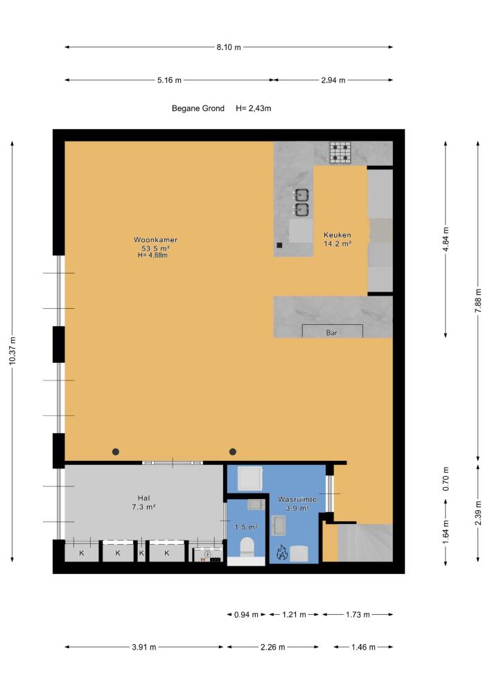
Entrance hall with built-in wardrobes, a modern toilet with a small sink, and through the steel-framed glass doors we enter the spacious living/dining room with an open-plan modern kitchen equipped with built-in appliances. This space has a loft-like feel thanks to its height and the large windows, allowing for abundant natural light. The floor is finished with beautiful oak parquet flooring, and two sets of French doors open onto the terrace in front of the house. The ground floor is completed by an internal storage room housing the central heating system, a water pump and water softener, and connections for a washing machine and dryer.

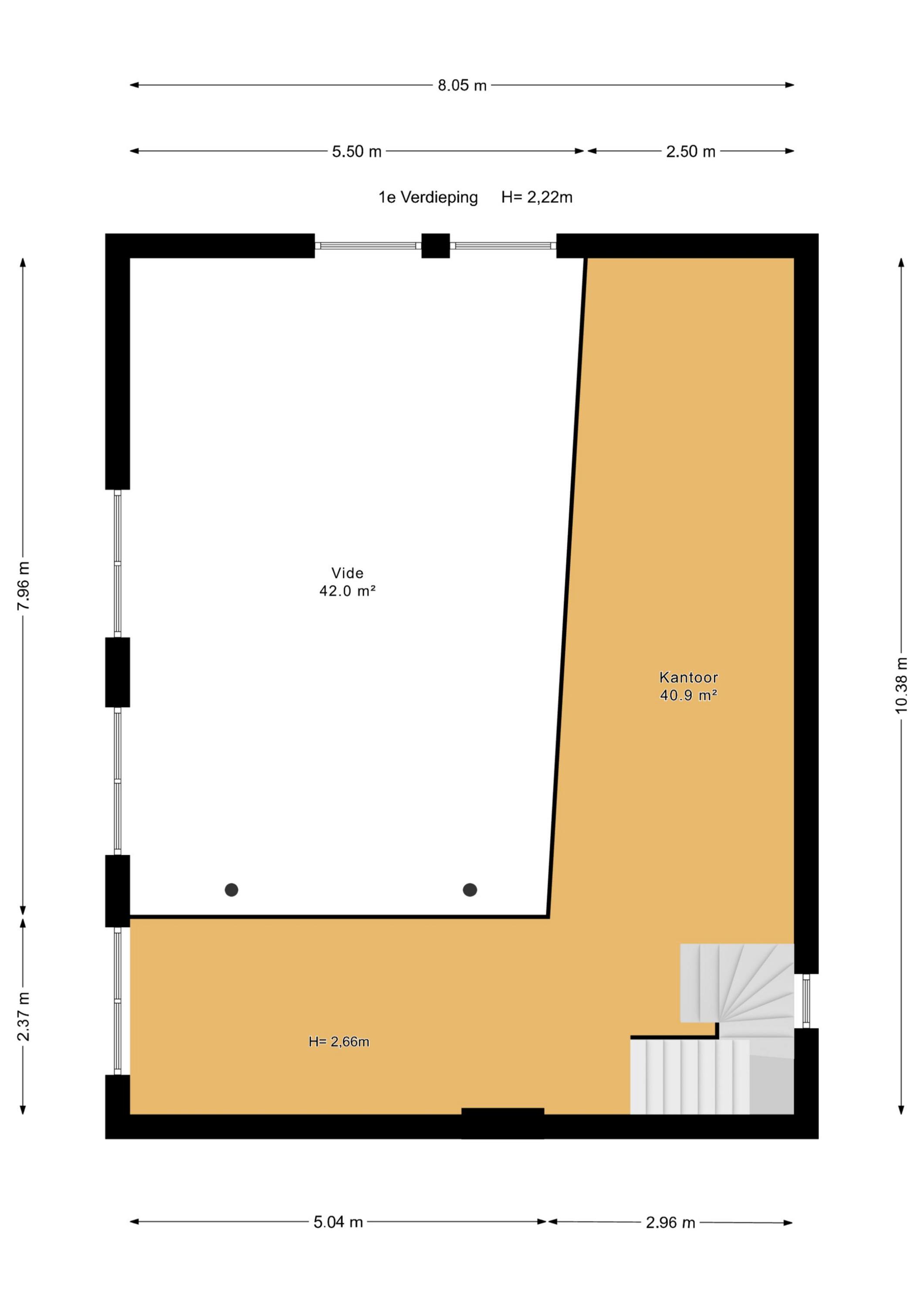
The first floor comprises a large L-shaped loft that can be used in various ways. Currently, two wonderfully bright workspaces are located here, but if additional bedrooms are needed, they can be created.

The second floor has three bedrooms, a spacious sunny balcony, and two modern bathrooms. The master bedroom also has a loft-like feel. From the hallway, an attic is accessible, featuring a heat recovery system. A staircase leads to the sunny roof terrace with a beautiful view of The Hague.

This unique property is located in the heart of the vibrant city center. Art galleries, theaters, shops, public transport, and many charming restaurants are all within walking distance.

Residents have access to underground parking. These 158 parking spaces are available to residents living or working within 200 meters of the palace gardens.

Additional information:
- Freehold land
- National Monument
- Living area approx. 200m²
- Energy label A
- Ground floor terrace
- Roof terrace
- Acceptance by mutual agreement
- Age and materials clauses will be included in the NVM Purchase Agreement

Features

Transfer of ownership
Asking Price
€ 1.580.000 k.k.
Status
beschikbaar
Acceptance
in overleg
Construction
Kind of house
Herenhuis
Building type
geschakelde woning
Construction period
1938
Energy rating
A
Bedrooms
3
Bathrooms
2
Surface Areas And Volume
Living Area
201 m2
Other indoor space
2 m2
Exterior space attached to the buildinge
18 m2
Volume in cubic meters
820 m3
Plot Size
116 m2
Facilities
In centrum
Beschutte ligging
Baerz & Co Property Brochure

Brochure

Videos

Van Santvoort Makelaars

Torenallee 65
5617 BB Eindhoven

dirk@vansantvoort.nl
+31 40 269 25 30

www.vansantvoort.nl

Information / Viewing request

Dirk van Santvoort profile image
Dirk van Santvoort
Real Estate Agent

Buying a Luxury Property in The Hague

The Hague offers a sophisticated community, global connectivity, and respected cultural institutions. Residents enjoy premium services, elegant surroundings, and seamless access to international amenities, all within a discreet and secure urban environment.