Baerz & Co is een landelijk samenwerkingsverband van zorgvuldig geselecteerde boutique luxury makelaars. Samen vormen wij één netwerk, met één gedeeld aanbod. De woningen die u op onze website ziet, zijn afkomstig van alle aangesloten kantoren binnen Baerz & Co. Daardoor is niet ieder object rechtstreeks door ons kantoor in verkoop, maar door een gespecialiseerde collega binnen ons netwerk. Heeft u een woning gevonden die u aanspreekt en wilt u meer informatie? Dan brengen wij u graag persoonlijk in contact met de betreffende verkoopmakelaar, zodat u direct en zorgvuldig wordt begeleid.

'S-HERTOGENBOSCH
Kamperfoeliestraat 23 - 5213 HP
Netherlands

Dirk van Santvoort profile image
Dirk van Santvoort
Real Estate Agent
€2,350,000 k.k.
Living Area
320m2
Plot Size
1336m2
Bedrooms
8

Description

Detached villa in Hinthamerpark.

This house was built in the style of "De Bossche School" (The Bossche School). This architecture, combined with the size of the building and the plot, makes it uniquely unique in the neighborhood. The architecture guarantees residents well-proportioned spaces and beautiful views. There is a front and back house connected by a hallway and staircase. Not only the number of bedrooms but also the spacious living areas ensure a spacious and comfortable family life. The large garden surrounding the house also contributes to this. There are several terraces, a playground with mature trees, and a flower garden adjacent to the studio. This is the house the neighborhood has been waiting for. Now's your chance.

Download the brochure here or request a viewing. We're happy to assist you.

Features

Transfer of ownership
Asking Price
€ 2.350.000 k.k.
Status
beschikbaar
Acceptance
in overleg
Construction
Kind of house
Villa
Building type
vrijstaande woning
Construction period
1955
Roof type
dwarskap
Bedrooms
8
Bathrooms
2
Surface Areas And Volume
Living Area
320 m2
Other indoor space
18 m2
External storage space
39 m2
Volume in cubic meters
1253 m3
Plot Size
1336 m2
Facilities
Mechanische ventilatie
Natuurlijke ventilatie
Aan rustige weg
In woonwijk
Vrij uitzicht
Baerz & Co Property Brochure

Brochure

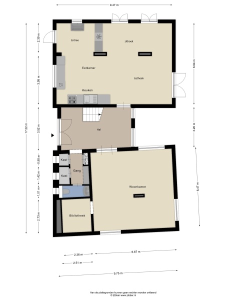
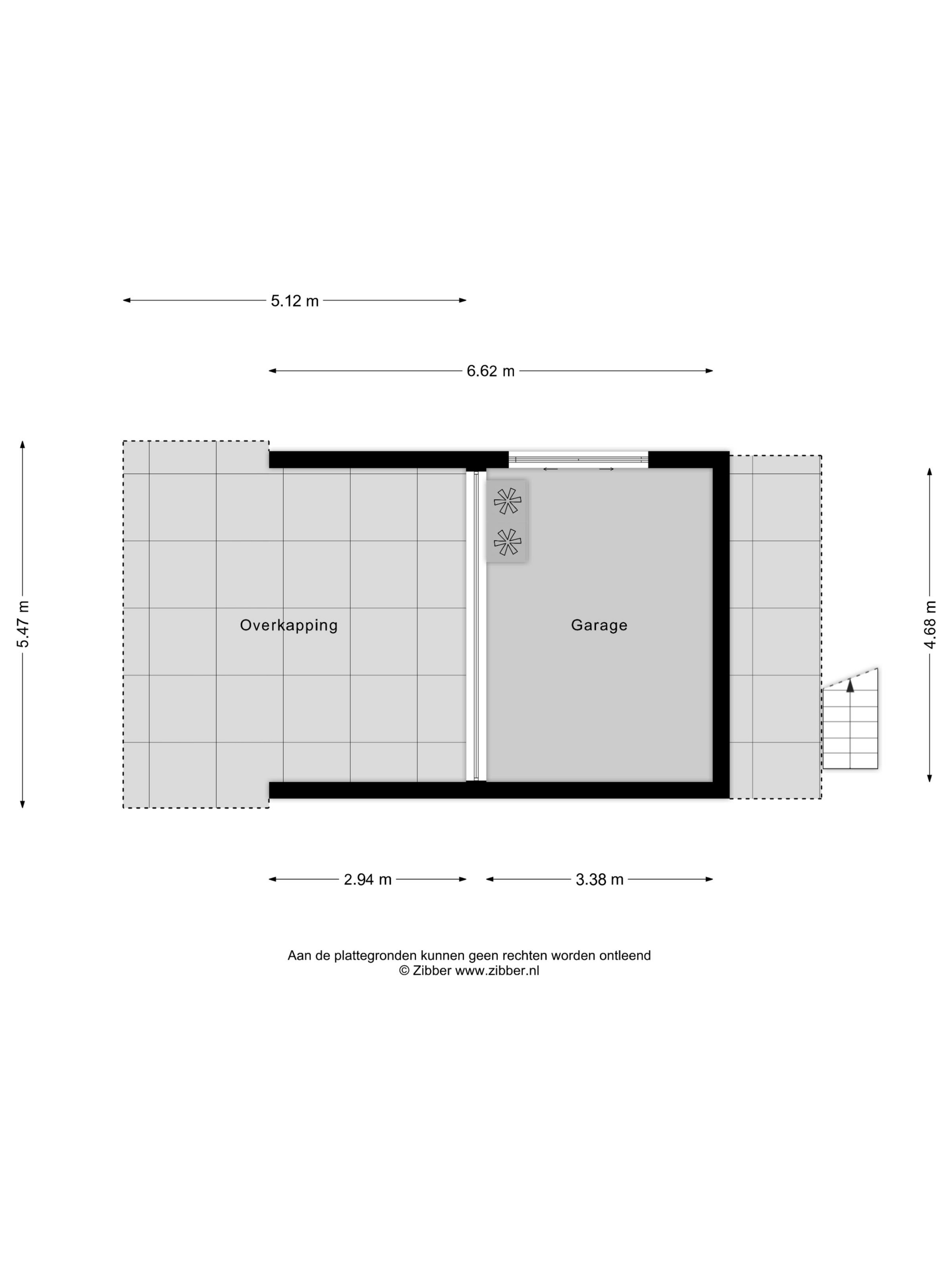
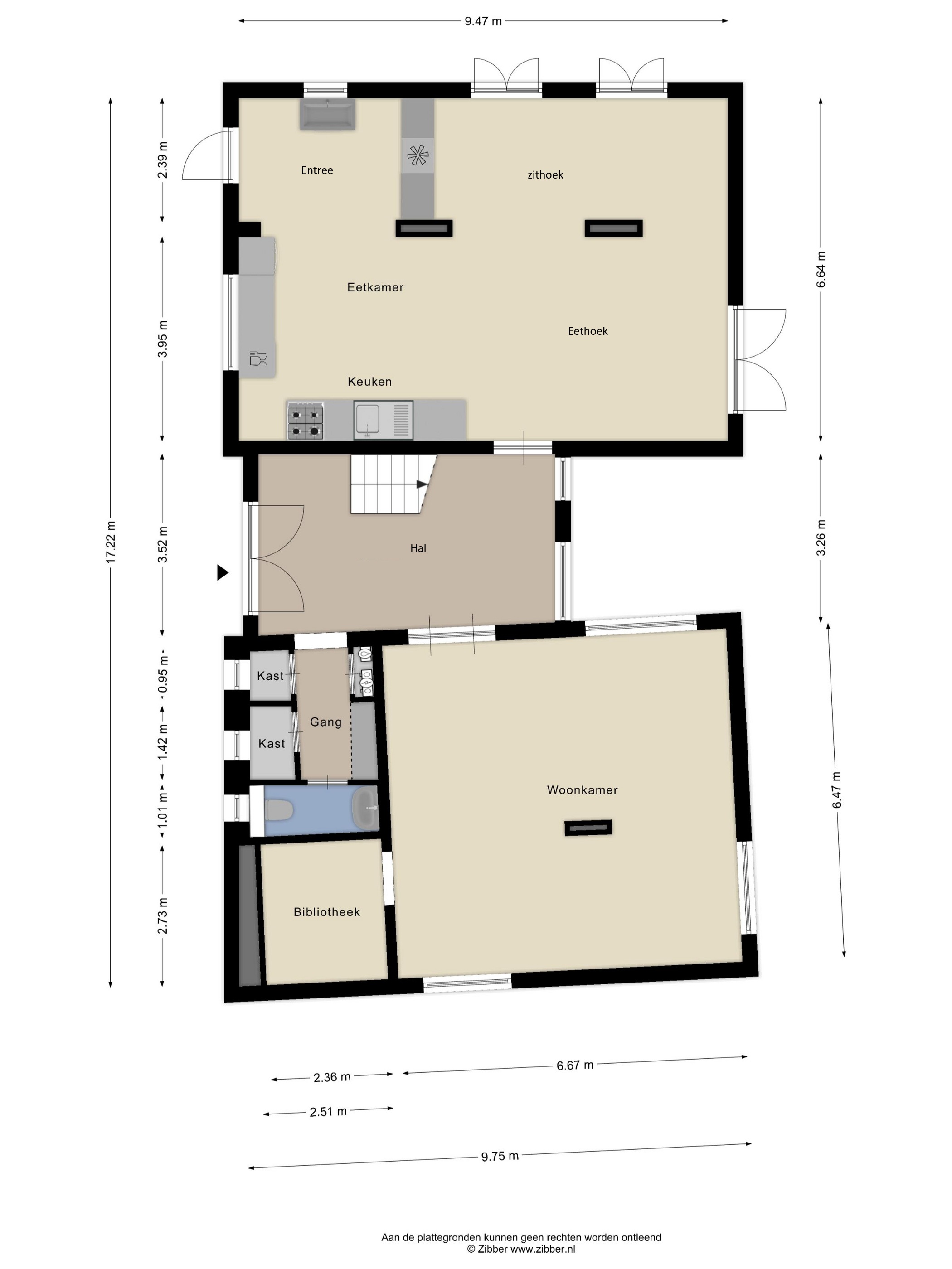
Floor Plans

Van Santvoort Makelaars

Torenallee 65
5617 BB Eindhoven

dirk@vansantvoort.nl
+31 40 269 25 30

www.vansantvoort.nl

Information / Viewing request

Dirk van Santvoort profile image
Dirk van Santvoort
Real Estate Agent

Buying a Luxury Property in 's-Hertogenbosch

's-Hertogenbosch offers a refined blend of history, culture, and contemporary living, attracting a globally minded community who value privacy, aesthetics, and seamless services within a vibrant, authentic Dutch environment.