 
	        		 
								This beautiful semi-detached corner home stands out for its generous volume and wonderfully bright and sunny living room. 
The property features a garage, private parking for three cars and a sunny west-facing backyard next to a charming waterway.
The house is set in a peaceful, family-friendly cul-de-sac with only local traffic. Within walking distance, you will find several primary schools, daycare facilities, park De Leeuwenkuil, and the pleasant town center of Bergschenhoek, offering a variety of shops, supermarkets, and restaurants. A short bike ride brings you to various sports and recreational facilities, such as swimming pool De Windas, Annie M.G. Schmidtpark, and natural play area Tuin van Floddertje, as well as the center of Berkel en Rodenrijs.
Thanks to its convenient location near public transport (bus and metro station Rodenrijs) and major roads (N209, N471, A12, A13, and A20), the major cities in the Randstad are easily accessible.
Layout
Front garden:
Spacious front garden with private driveway offering parking for three cars and access to the garage.
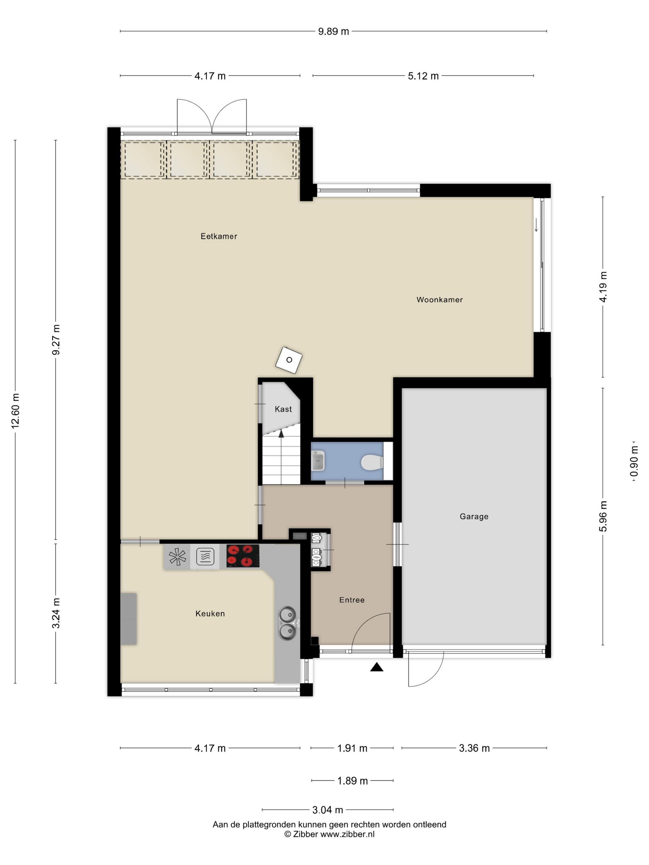
Ground floor: 
Entrance hall with toilet, utility cupboard, staircase to the first floor, and access to both the garage and the living room.
The spacious and bright living room features a beautiful tiled floor with underfloor heating and offers direct access to the sunny west-facing garden through French doors and a sliding door.
The recently renovated L-shaped kitchen is fully equipped with built-in appliances, including a dishwasher, induction hob, extractor hood, double sink with mixer tap, oven, and fridge-freezer combination. A window screen has also been installed.
First floor:
Spacious landing with separate toilet, two bedrooms, and a bathroom.
Bedroom 1 (approx. 3.25 x 4.17 m) is located at the front and features a French balcony.
Bedroom 2 (approx. 4.19 x 4.17 m) is located at the rear, also with a French balcony and an electrically operated roller shutter.
The modern bathroom is fitted with a bathtub, washbasin with vanity unit, separate shower, underfloor heating and a design radiator.
Second floor:
Landing with connections for a washing machine and dryer, as well as an additional washbasin.
The two bedrooms at the rear each feature a French balcony.
At the front is a spacious storage room which is ideal for storing household items.
Particulars:
- Built in 2001, living area approx. 174 m²
- Well-kept west-facing garden with unobstructed water views
- Private driveway for three cars and an attached garage
- District heating
- Schools, shops and public transport within walking distance
We warmly invite you to come and view this wonderful family home in person.
All information provided should be regarded as an invitation to make an offer or enter into negotiations. No rights can be derived from this property description.
Additional Information
All information provided must be regarded as an invitation to make an offer or to enter negotiations. The texts and impressions are intended to give a good impression of the property. The utmost care has been taken with the content; nevertheless, all information is expressly subject to change. No rights can be derived from this property information.
Purchase agreement legally binding only after signature:
An oral agreement between the private seller and the private buyer is not legally binding. In other words: there is no sale. A purchase is only legally valid once both the private seller and the private buyer have signed the purchase agreement. This follows from Article 7:2 of the Dutch Civil Code. A confirmation of the oral agreement by e-mail or a draft purchase agreement sent is not considered a "signed purchase agreement."
Measurement Instruction Disclaimer:
The property has been measured in accordance with the industry-wide Measurement Instruction (BBMI). The Measurement Instruction is intended to apply a more uniform method of measuring to provide an indication of the usable surface area. The Measurement Instruction does not completely exclude differences in measurement results, for example, due to interpretation differences, rounding, or limitations during the measurement process.
