Ons kantoor is lid van Baerz & Co Luxury Homes; een internationaal platform dat exclusieve woningmakelaars met elkaar verbindt. Neem contact op met ons secretariaat voor meer informatie over het landelijke aanbod, waarvan u hieronder een selectie kunt bekijken.

Landhuis for sale in ZUILICHEM

ZUILICHEM Leendertdijk 7 - 5305 VH The Netherlands


Jeanette van Haaften profile image
Jeanette van Haaften
Real Estate Agent
+31 (0)41 86 80 050
info@bijzonderwonen.com

Bijzonder Wonen Makelaardij
Heilige Geeststraat, 11
5301CP Zaltbommel
NETHERLANDS
+31 41 868 00 50
www.bijzonderwonen.com
info@bijzonderwonen.com

Living area
328m2
Plot size
2060m2
Bedrooms
5

Description

In a rural setting near the river Maas stands this rustic country house with a double garage and carport, situated on a plot of over 2,000 m². The grounds feature a lawn, mature trees, several terraces, and a low-maintenance garden.

Gross volume: approx. 1,090 m³
Living area: 328 m²
(of which 56 m² in the basement)
Plot size: 2,060 m²
Year of construction: 1981

Garden-facing living space of 140 m² with wide wooden floorboards, a wood-burning stove, and a fully fitted kitchen. A portal leads to the guest room with adjoining shower room, a separate toilet, and a study on the ground floor.
First floor: landing with toilet, four bedrooms (one with balcony and dressing/ironing room), plus a complete bathroom.

Ground floor layout
The entrance is located at the rear, by the elevated hardwood terrace. Through wide French doors with mullioned windows, you enter the impressive living space, where broad floorboards, a wood-fired stove, and large windows create a warm atmosphere.
The kitchen is equally light and spacious, accommodating a large dining table and equipped with a luxury, fully fitted kitchen with high-quality built-in appliances. From here, there is access to a second terrace adjacent to the driveway.
At the front are two multifunctional rooms, visually connected by a glass partition.
One currently serves as a study; the other makes an ideal guest room thanks to the adjoining shower and toilet. In the study, a hatch leads to a cellar.

First floor layout
The landing provides access to four bedrooms, a complete bathroom, and a separate toilet with urinal.
The east-facing bedroom spans the full depth of the house and is fitted with built-in wardrobes under the eaves. The master bedroom opens onto a wide balcony and an adjoining dressing room, currently in use as such but equally suited as an additional study or bathroom.
The two remaining bedrooms are playfully designed, with exposed roof beams and mullioned windows offering fine views of the surroundings. The bathroom, styled in line with the bedrooms, is fitted with a bathtub, shower cabin, and double washbasin.

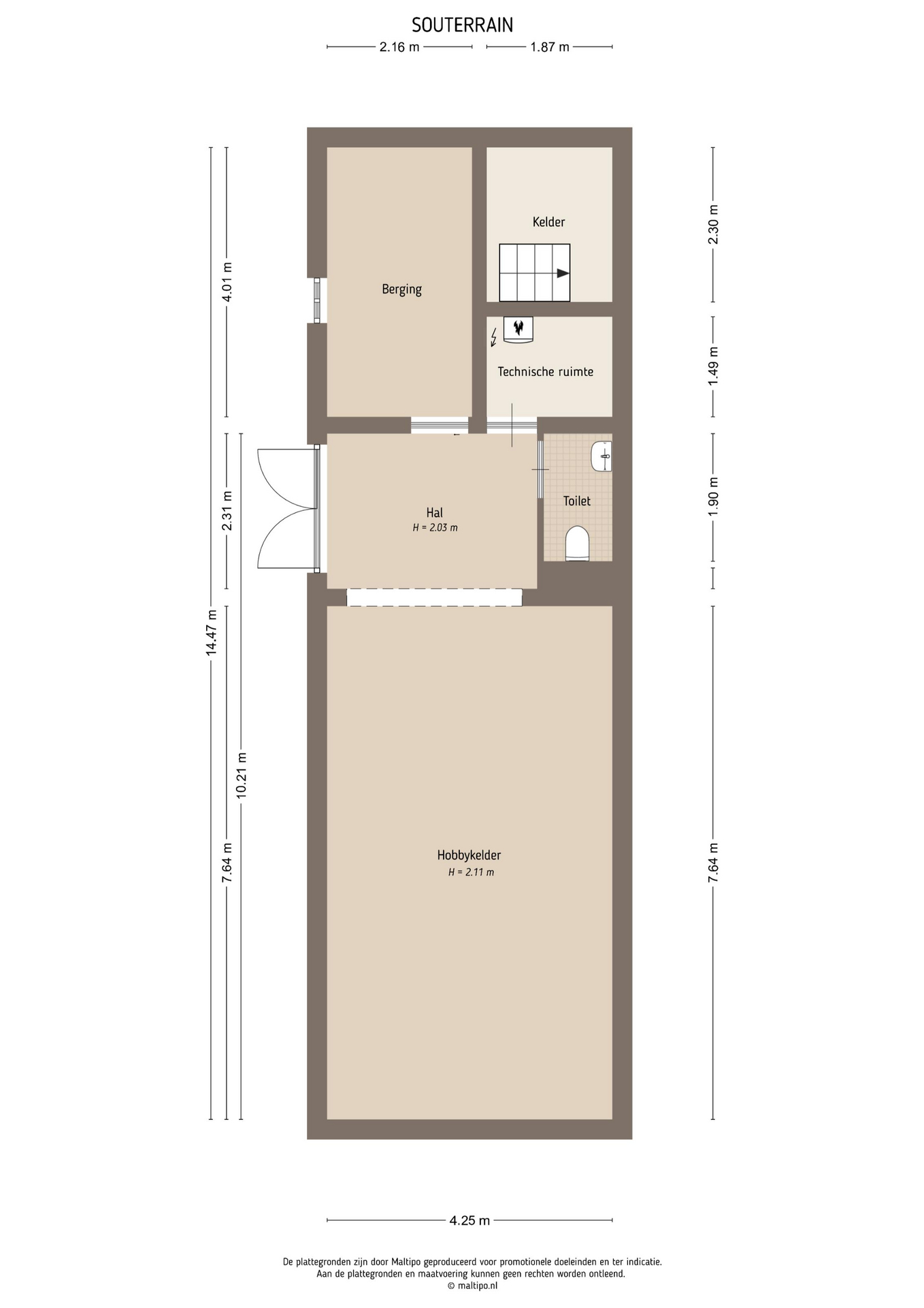
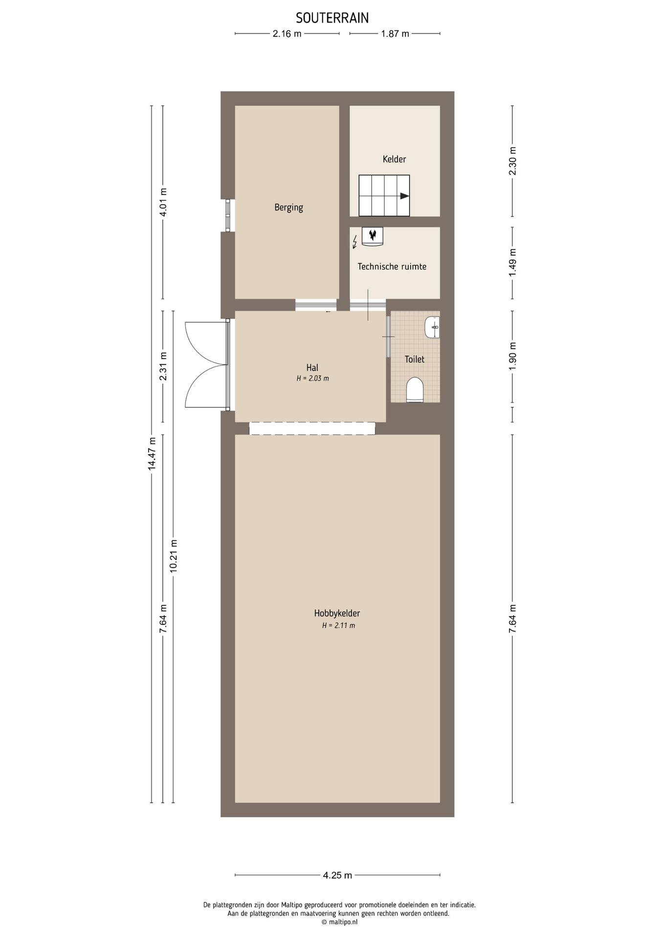
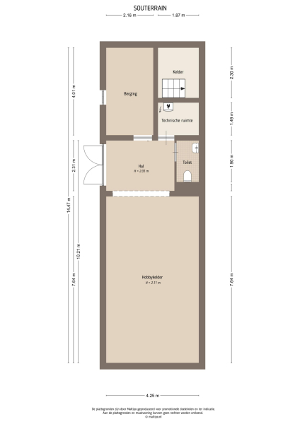
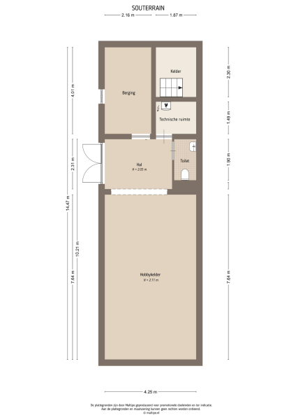
Basement layout
A spacious basement extends beneath the entire house, with a ceiling height of approx. 2.10 metres. Currently arranged as an atmospheric wine cellar where tastings are held, it could also serve as a hobby room, gym, or additional storage.
The basement includes a toilet, pantry, and storage room housing the central heating boiler. It is accessible via double hardwood doors from the garden.

Special features
This country house combines a charming rustic character with excellent maintenance and modern comfort. Attention to detail is evident throughout, with high-quality materials and carefully chosen finishes creating a distinctive and characterful home.
To the left of the driveway stands a solid outbuilding with a tiled roof, including a double carport, garage, and storage for motorcycles and bicycles. The garden has been landscaped for easy maintenance, with large hardwood terraces, transparent stainless-steel balustrades, decorative hydrangea borders, and a lawn with mature planting. The sloping bank along the dike is planted with, among others, periwinkle and barren strawberry.
Thanks to its east/west orientation, the roof of the outbuilding is ideally suited for solar panels; installing just four panels would already raise the current energy label from C to B.
The house is fully insulated and in excellent condition. The thatched roof was completely renewed ten years ago. On the ground floor, beams and trusses have been left exposed, enhancing the warm, rural feel. Upstairs, all rooms are finished with tongue-and-groove boarding and wide floorboards.

This is an ideal property for those seeking peace and comfort in a spacious dike house at a unique location close to the water.

Features

Transfer of ownership
price
€ 1.075.000 k.k.
Status
beschikbaar
Acceptance
in overleg
Construction
Kind of house
Landhuis
Building type
vrijstaande woning
Energy rating
C
Roof type
schilddak
Bedrooms
5
Bathrooms
1
Surface Areas And Volume
Living area
328 m2
Other indoor space
4 m2
Exterior space attached to the building
38 m2
External storage space
33 m2
Volume in cubic meters
1090 m3
Plot size
2060 m2
facilities
Mechanische ventilatie
Alarminstallatie
Rookkanaal
Vrij uitzicht
Landelijk gelegen
Baerz & Co Property Brochure

Brochure

Information / Viewing request

Videos

Video Leendertdijk 7
Video Leendertdijk 7

Photos

Floor Plans