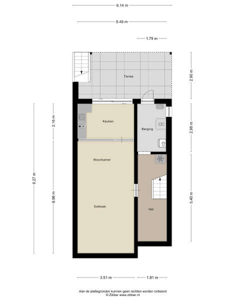
Esta casa pareada en Berkel en Rodenrijs, originaria de la década de 1930, equilibra historia y potencial en una ubicación discreta junto al Rodenrijse Vaart. Diseñada sobre 170 m² de superficie útil en una parcela de 788 m², el atractivo de la propiedad gira en torno a su profundo y extra ancho jardín trasero de 28 metros. La luz de la mañana se desplaza suavemente por varias terrazas, ofreciendo zonas polivalentes para trabajar o relajarse, mientras un paisaje frondoso y un sereno estanque invitan a la privacidad.
En el interior, el parquet original y una chimenea con carácter crean una atmósfera tranquila en el salón, mientras la cocina está equipada con modernas prestaciones, incluyendo nevera, lavavajillas, horno y placa de inducción. La planta baja se integra perfectamente con el jardín, invitando a disfrutar del exterior en casa. Arriba, dos amplios dormitorios—ambos fueron divididos en su día y pueden volver a separarse si se desea—invitan al descanso, con balcones y vistas verdes y aire acondicionado para mayor confort. La primera planta alberga un baño con ducha, lavabo y radiador toallero.
El sótano, espacioso y versátil, cuenta con una segunda cocina y comedor con acceso directo al jardín, ideal para alojar invitados o adaptarse a las necesidades familiares. Un acceso privado con portón eléctrico y espacio para varios coches, una cochera con 10 paneles solares y un garaje con suministro eléctrico reflejan un lujo práctico.
A minutos del centro de Berkel en Rodenrijs, esta dirección ofrece acceso directo a RandstadRail—a tres minutos caminando—rutas ciclistas y principales vías hacia Rotterdam, La Haya y más allá. Esta casa pareada en venta en Berkel en Rodenrijs es una invitación a crear un refugio personal sin renunciar a la conexión con el ritmo vibrante de la ciudad.
Explora Berkel en Rodenrijs con Baerz, tu asesor y buscador personal de propiedades de confianza
Navegar este mercado selectivo requiere conocimiento de normativas locales, valores y procedimientos. Los asesores ofrecen acceso a propiedades fuera de mercado, aprovechan sus redes y representan hábilmente los intereses del cliente durante la negociación. Su guía asegura procesos fluidos y la máxima discreción e inversión exitosa.
Evite errores comunes
Los compradores internacionales a menudo desperdician tiempo valioso navegando por anuncios duplicados, desactualizados o engañosos, especialmente porque casi el 30% de las propiedades de lujo nunca aparecen en el mercado.
Los agentes del vendedor representan los intereses del vendedor, no los suyos, y simplemente solicitar información sobre una propiedad puede hacer que las agencias lo registren como su “cliente” sin su consentimiento.
Con Baerz Property Finders & Advisors, evita completamente estos problemas.
Actuamos únicamente en su nombre, ofreciendo representación independiente, orientación transparente y acceso a todas las propiedades disponibles, incluidas oportunidades privadas y fuera de mercado que otros nunca ven.
¿Le gustaría saber cómo asegurar su propio Asesor Personal de Propiedades? Contáctenos para descubrir cómo podemos representar sus intereses y abrirle el mercado completo.