Ons kantoor is lid van Baerz & Co Luxury Homes; een internationaal platform dat exclusieve woningmakelaars met elkaar verbindt. Neem contact op met ons secretariaat voor meer informatie over het landelijke aanbod, waarvan u hieronder een selectie kunt bekijken.

SASSENHEIM
Van Pallandtlaan 24 - 2172 JJ
Нидерланды

Rick Broekhof profile image
Rick Broekhof
Real estate agent
€1,295,000 k.k.
Жилая площадь
199m2
Размер участка
1130m2
Спальни
2

Описание

Вилла Sassenheim предлагает ощущение пространства и приватности на участке 1 130 м² в престижном жилом районе Нидерландов. Эта вилла сочетает в себе основательный архитектурный стиль 1951 года и 199 м² жилой площади, формируя гармонию между классикой и современностью. С первого взгляда вас встречает приватный въезд с обилием парковочных мест, ведущий в светлые интерьеры с гостиной Г-образной формы, оригинальными витражами и паркетным полом. Естественный свет плавно заполняет современную оранжерею и еще одну гостиную, обе расположены на отапливаемом кафельном полу, что расширяет пространство для отдыха и предлагает разнообразные возможности для релаксации или приема гостей.

На первом этаже расположены две спальни площадью около 15 м² каждая, ориентированные на спокойную, тихую сторону. Главная спальня располагает отдельной ванной комнатой с душем, вторая выходит на балкон, ориентированный на юго-запад. Вторая полноценная ванная комната оснащена ванной, душем и двумя входами, что еще больше повышает уровень комфорта. Чердак с высотой в коньке 2,3 метра создает потенциал для индивидуальной перепланировки в будущем.

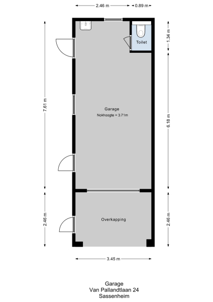
Практически весь подвал, с двумя входами, сейчас используется как прачечная и кладовая, однако пространство идеально подходит для устройства спортзала, домашнего кинотеатра или зоны релаксации. На участке разбит ландшафтный сад, имеется два въезда и гаражи площадью 26 м² и 16 м², обеспечивающие достойное количество парковочных и вспомогательных зон. Вилла Sassenheim удобно связана с центром города Sassenheim — магазинами, школами, ресторанами — а также с основными автомагистралями Нидерландов, такими как A44 и N206, что обеспечивает быстрые маршруты до Лейдена, Амстердама, Харлема и Гааги, а также подвижную сеть общественного транспорта. Эта вилла в Sassenheim объединяет проверенное временем очарование с возможностями для требовательного стиля жизни.

Исследуйте Sassenheim с Baerz, вашим надежным личным консультантом по недвижимости

Премиальный рынок города требует исключительной деликатности и глубокого понимания локальных особенностей. Частные сделки и конфиденциальные переговоры распространены. Надежный советник обеспечит доступ к уникальным объектам, отстаивает интересы покупателя, поможет учесть все нюансы законодательства и инвестиционного потенциала. Такой подход максимизирует выгоду в этом закрытом сообществе.

Избегайте распространенных ошибок

Международные покупатели часто тратят драгоценное время на дублирующиеся, устаревшие или вводящие в заблуждение онлайн-объявления, особенно учитывая, что почти 30% роскошных домов никогда не появляются на открытом рынке. Агенты продавца представляют интересы продавца, а не покупателя. Даже запрос информации о недвижимости может привести к тому, что агент продавца зарегистрирует вас как своего «клиента» без вашего согласия.
С Baerz Property Finders & Advisors вы полностью избегаете всех этих ошибок. Мы работаем исключительно в ваших интересах, предлагая независимое представительство, четкое руководство и доступ ко всем доступным объектам, включая возможности вне рынка, которые другие никогда не увидят.

Интересует Личный Консультант по Недвижимости?

Мы показываем вам все доступные дома в одном месте. Не стесняйтесь связаться с нами, чтобы узнать, как мы можем удовлетворить ваши потребности и защитить ваши интересы исключительно.

Особенности

Сигнализация
Передача права собственности
Запрашиваемая цена
€ 1.295.000 k.k.
Статус
beschikbaar
Принятие
in overleg
Строительство
Тип дома
Villa
Тип здания
vrijstaande woning
Период строительства
1951
Энергетический рейтинг
E
Тип крыши
samengesteld dak
Спальни
2
Ванные комнаты
2
Площадь и объем
Жилая площадь
199 m2
Другое внутреннее пространство
94 m2
Внешнее пространство, прилегающее к зданию
11 m2
Внешнее складское пространство
42 m2
Объем в кубических метрах
980 m3
Размер участка
1130 m2
Удобства
Alarminstallatie
Rookkanaal
Baerz & Co Property Brochure

Брошюра

Видео

Планы этажей

Wilbrink & v.d. Vlugt Makelaars

Heereweg 231
2161 BG Lisse

info@wilbrinkvandervlugt.nl
+31 252 41 90 49

www.onsaanbod.nl

Запрос информации / просмотра

Rick Broekhof profile image
Rick Broekhof
Real estate agent