Ons kantoor is lid van Baerz & Co Luxury Homes; een internationaal platform dat exclusieve woningmakelaars met elkaar verbindt. Neem contact op met ons secretariaat voor meer informatie over het landelijke aanbod, waarvan u hieronder een selectie kunt bekijken.

UITHOORN
Faunalaan 93 - 1422 ZH
荷兰

John Korver profile image
John Korver
Real estate agent
€1,343,000 k.k.
生活区
290m2
地块大小
445m2
卧室
6

描述

Uithoorn别墅位于备受青睐的Legmeer-West住宅区,绝佳地平衡了宽敞空间与尊贵生活品味。甫一到达,即被290平方米的布局所欢迎,充满光线、私密感和多样功能。宽敞的车道可容纳多辆汽车,静谧街区映衬出宅邸安然的氛围。

入口处的前厅展示了巧妙的空间规划与隐蔽储物设计。主起居室以自然采光和室内外无缝流转为特色,法式门直通445平方米的阳光花园。多处露台、水池和静谧角落是休憩与社交的理想之选。开放式厨房精心打造,配备大型中岛和高端电器,兼顾实用与互动氛围。独立的多功能房间设有专用入口,可作为办公室、工作室或健身空间,为追求自我和创意空间的人士提供理想选择。

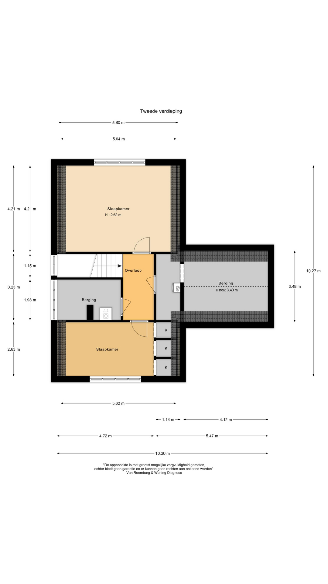
楼上,三间卧室环绕安逸的楼梯间,安静的浴室与额外宾客盥洗室,进一步升华舒适与私密体验。二楼则扩展了更多可能性,两间额外卧室与充裕储藏空间,充分满足成长型家庭或藏家所需。

全屋采用如法式橡木地板配地暖等高档用材,彰显低调奢华。车库配备电动卷帘门、供暖与工作区功能,并与住宅巧妙连通。A能效等级,18块太阳能板及混合热泵,满足高效现代生活。

毗邻通往阿姆斯特丹的快速电车,周边有多所学校、公园和体育俱乐部,将城市便捷与Uithoorn的悠闲生活完美融合。这座别墅不仅拥有尺度与工艺,更代表了一个静谧、便利与日常舒适交融的理想住址。

与 Baerz 一起探索 Uithoorn,您值得信赖的私人房产顾问和搜寻专家

乌伊特霍伦市场交易复杂,包括细致谈判、非公开房源及政策调整,依靠专业顾问益处明显。顾问全程指导,从房源甄选到尽职审核,凭借独特渠道和对客户需求的精准把握,为买家争取更多优势。

避免常见陷阱

国际买家经常浪费大量时间浏览重复、过时或误导性的在线房源,尤其是因为近 30% 的豪华物业根本不会公开上市。
卖方代理代表卖方的利益,而非您的利益;甚至仅仅对房产进行咨询,都可能导致中介在未经您同意的情况下将您登记为他们的“客户”。
通过 Baerz Property Finders & Advisors,您可以完全避免这些问题。
我们只代表您,提供独立建议、透明指导,并让您接触所有可售房源,包括私人及未上市的独家机会,这些往往不会被他人看到。

想知道如何获得您自己的私人房产顾问吗?联系我们,了解我们如何代表您的利益并为您打开整个市场。

特点

太阳能面板
所有权转让
要价
€ 1.343.000 k.k.
状态
verkocht onder voorbehoud
接受
in overleg
建筑
房屋类型
Villa
建筑类型
geschakelde woning
建筑时期
2009
能源评级
A
屋顶类型
samengesteld dak
卧室
6
浴室
1
表面积和体积
生活区
290 m2
其他室内空间
22 m2
体积(立方米)
1116 m3
地块大小
445 m2
设施
Mechanische ventilatie
Tv kabel
Rookkanaal
Dakraam
Zonnepanelen
Balansventilatie
Natuurlijke ventilatie
Aan rustige weg
In woonwijk
Baerz & Co Property Brochure

宣传册

视频

户型图

Korver makelaars

Stationsweg 12
3641RG Mijdrecht

welkom@korvermakelaars.nl
+31 297 25 04 21

www.korvermakelaars.nl

信息/查看请求

John Korver profile image
John Korver
Real estate agent